Skip to main content
the Consortium ae architectural engineering Milwaukee
Slide Four
Commercial

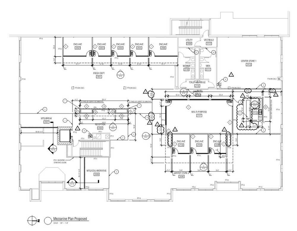
Affiliated Foods Kenosha WI

(13,000 s.f. workplace renovation)
The Consortium ae LLC was retained as the design professional of record by Steelcase dealer Forrer Business Interiors to renovate the second floor office mezzanine area of Affiliated Foods large distribution center. Upon completion of this work culture change the only components remaining from the original project were the stairs, elevator and toilet rooms. Forrer Business Interiors managed the project and performed the award winning interior design.